- Accueil
- Vente
- Hauts de seine
- Rueil malmaison
- RUEIL 2000
Référence : 9322
Partager
RUEIL 2000
Partager l'offre
Description de l'offre
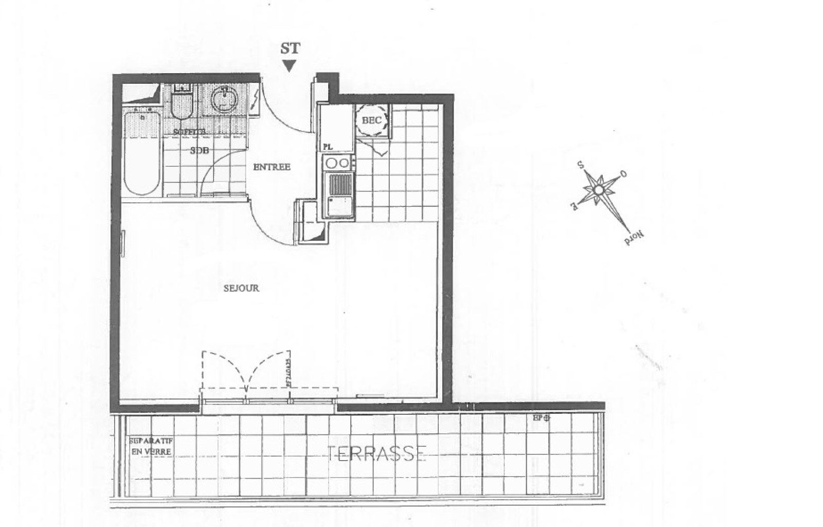
Charmant studio en rez-de-chaussée, bénéficiant d’une belle terrasse de plus de 13 m². Il offre une entrée avec rangements, une pièce principale conviviale avec cuisine ouverte et accès direct à l’extérieur, ainsi qu’une salle de bains avec WC.
Un stationnement en sous-sol vient compléter ce bien.
Chauffage individuel électrique.
Les informations sur les risques auxquels ce bien est exposé sont disponibles sur le site Géorisques
Descriptif du bien
- Code postal : 92500
- Surface habitable (m²) : 31,64 m²
- Nombre de pièces : 1
- Meublé : NON
- Nb de salle de bains : 1
- Cuisine : KITCHENETTE
- Mode de chauffage : Electrique
- Type de chauffage : Radiateur
- Format de chauffage : Individuel
- Interphone : OUI
- Loggia : NON
- Terrasse : OUI
- Cave : NON
- Année de construction : 2002
- Copropriété : OUI
- Loyer CC* / mois : 895 €
- Honoraires TTC charge locataire : 473 €
- Dont état des lieux : 94 €
- Dépôt de garantie TTC : 835 €
- Charges locatives (Previsionnelles mensuelles les avec regularisation annuelle) : 60 €
Montant estimé des dépenses annuelles d'énergie de ce logement pour un usage standard est compris entre 670 € et 950 € . 2022 étant l'année de référence des prix de l'énergie utilisés pour établir cette estimation.
La ville de Rueil-Malmaison (92500)
Nous Contacter
Afficher le téléphone 01 47 49 09 46Les informations recueillies sur ce formulaire sont enregistrées dans un fichier informatisé par La Boite Immo agissant comme Sous-traitant du traitement pour la gestion de la clientèle/prospects de l'Agence / du Réseau qui reste Responsable du Traitement de vos Données personnelles.
La base légale du traitement repose sur l'intérêt légitime de l'Agence / du Réseau.
Elles sont conservées jusqu'à demande de suppression et sont destinées à l'Agence / au Réseau.
Conformément à la loi « informatique et libertés », vous disposez des droits d’accès, de rectification, d’effacement, d’opposition, de limitation et de portabilité de vos données. Vous pouvez retirer votre consentement à tout moment en contactant directement l’Agence / Le Réseau.
Consultez le site https://cnil.fr/fr pour plus d’informations sur vos droits.
Si vous estimez, après avoir contacté l'Agence / le Réseau, que vos droits « Informatique et Libertés » ne sont pas respectés, vous pouvez adresser une réclamation à la CNIL.
Nous vous informons de l’existence de la liste d'opposition au démarchage téléphonique « Bloctel », sur laquelle vous pouvez vous inscrire ici : https://www.bloctel.gouv.fr
Dans le cadre de la protection des Données personnelles, nous vous invitons à ne pas inscrire de Données sensibles dans le champ de saisie libre.
Ce site est protégé par reCAPTCHA, les Politiques de Confidentialité et les Conditions d'Utilisation de Google s'appliquent.
